川南在线 发布时间:2024-12-25
国家非遗,重点文物,在地文化丰富;
传统村落,空间美学,基础条件优越;
赤水河畔,广阔天地,理想大有可为;
人间烟火,诗和远方,一切由你定义!



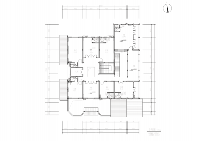
第一层平面图(面积:342.09平方米)

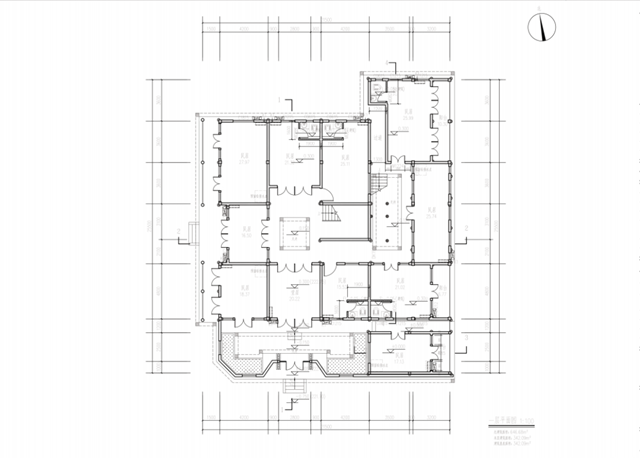
第二层平面图(面积:304.59平方米)
建设内容
社会业主进行内部装修、改造利用1500余平方米,着重于中高端餐饮及部分民宿产业。
建设条件
先市镇距合江县城20公里,距泸州市区40余公里,该项目位于赤水河畔,环境优美;
紧邻先市酱油赤水河庄园,地理位置优越。先市酱油赤水河庄园拥有我国连续使用时间最长、保护最完整的天然晒露发酵场和酱油酿造作坊。先市酱油酿造作坊是全国重点文物保护单位,被誉为“中国的酱油天然博物馆”;
先市酱油传统酿造技艺是国家级非物质文化遗产代表性项目,被称为中国酱油传统酿造活化石。先市镇“工农旅”融合发展,正在打造先市酱油特色小城镇,市场前景广阔,镇内尚无民宿餐饮综合体,满足旅游市场消费需求;
依托洗网滩生态修复、酱油古法酿造文化廊道等项目,正在建设沿河廊道、酱油文化广场等设施,基础配套完善。
全国招商
项目地点:合江县先市镇
投资金额:600万元
合作方式:租赁
联系方式:
周先生 0830-5218976
罗女士 0830-5229631
(来源:文旅泸州-合江文旅)
编辑:李永鑫
关注川南在线网微信公众号
长按或扫描二维码 ,获取更多最新资讯
其他