川南在线 发布时间:2021-08-29
8月26日,泸州市自然资源和规划局发布了关于泸州恒硕置业有限公司鸿运大厦项目规划设计方案的公示。

泸州市自然资源和规划局官网截图
规划显示,鸿运大厦项目位于江阳区前进中路南侧,总用地面积约20.36亩,地上容积率7.47,地下商业容积率为0.5999,建筑密度47.56%。

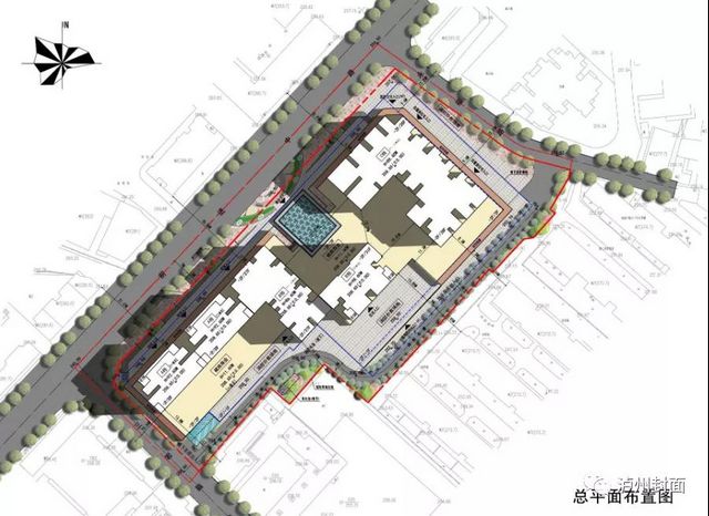
鸿运大厦项目总平面图
鸿运大厦项目规划总建筑面积约12.33万㎡,其中地上住宅面积89798㎡,地上商业办公等用房11857㎡;地下商业办公等用房8142.5㎡,地下车库及设备用房11567.5㎡,此外,项目还规划了公厕、消防控制室、物管用房、业委会议事室。
项目将提供1058套住宅和532个机动车位。

鸿运大厦项目鸟瞰图
项目宗地土拍回顾:
今年7月23日,这宗(08号宗地)位于江阳区前进中路南侧一宗商住用地在泸州市公共资源交易中心交易大厅进行拍卖。最终,该宗地块以 937万/亩、总价1.907亿元由泸州恒硕置业有限公司成功拍下。这是下半年泸州市推出的第一宗地块,也是近几年老城区推出的为数不多的一宗稀缺土地。

宗地基本情况:
地块编号:510502-2021-B-008
土地坐落:江阳区前进中路南侧
规划用地面积:13572㎡ (合20.358亩)
规划用地性质:R2二类居住用地(兼容商业服务设施,规模不超过总计容面积的18.7%)
土地用途:城镇住宅用地(兼容商服用地)
容积率:地上<7.5,地下<0.6
使用年限:住宅70年、商业40年
建筑限高:<100米
保证金:3820万元
起拍价:937万元/亩
起始楼面地价:1874元/㎡
成交价:937万/亩
成交楼面地价:1874元/㎡
成交总价:19075.45万元
竞得人:泸州恒硕置业有限公司

鸿运大厦项目处于泸州市老城区,周边教育、交通、医疗、购物、景观等配套都已十分成熟。另外,该地块周边还有长江南湾、现代品尚、长江现代城、誉润城等小区。其中誉润城为在售项目,其它小区均已是交房入住多年的成熟小区。



(来源:泸州封面)
编辑:邱果
关注川南在线网微信公众号
长按或扫描二维码 ,获取更多最新资讯
其他